top of page

Adiuvat Coffee Roaster Quinhon / A+H architect

  • Волчкова Светлана
  • 5 сент. 2020 г.
  • 1 мин. чтения

Вьетнамская кофейня

ВЬЕТНАМ

Архитекторы: A+H architect

Площадь: 110 м2

Фото: Quang Tran


Идея спокойного и безмятежного места, расположенного на старой улице с долгой городской историей, подчеркнутая типичным стилем архитектуры таунхауса до 1975 года, который включает в себя первый этаж и этаж с фирменным размывом гальки на фасадах.




После нескольких предыдущих ремонтов дом изменил свой внешний вид и понизился в целом. Чтобы вернуть его к оригиналу, размытая галька была повторно использована для фасада в сочетании с большой железной вывеской, тонко и гармонично настроенной; после нескольких дождливых и сухих сезонов стена и железная табличка тонируются и сливаются с ландшафтом улицы.

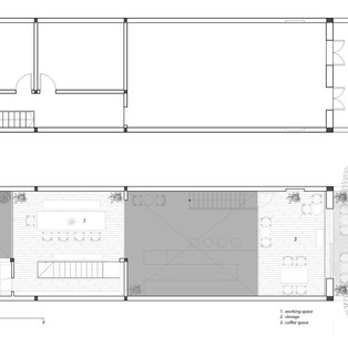
При типичности таунхауса, которому не хватает вентиляции и света, мы предложили многослойную пространственную компоновку:

- Горизонтальная: четкое и последовательное расположение горизонтальных слоев пространства, заканчивающееся шероховатой стеной соседского дома.

- Вертикальная: планировка атриумных пространств чередуется с низкими пространствами; с большой зоной, где расположен бар (сердце проекта), эти атриумные пространства предназначены для создания большего количества взаимодействий между людьми, создавая комфортную и уютную атмосферу. Неоднозначная и подвесная архитектура переходит во все функциональные пространства (фальшпол, шторы, контрастные материалы), но все же обеспечивает прозрачность и однородность материалов по всей структуре.




Структурная система со старой фиброцементной кровлей, идущей со старой балкой и деревянным полом, считается переработанной для повторного использования и совмещения с рабочими методами местных строителей; сочетание перехода размывных стен из гальки с деревянными стенами, а затем серых цементных стен, идущих с бетонным полом, шлифованием и настройкой с использованием стеклянных и деревянных материалов - все это помогает оптимизировать инвестиционные затраты, а также привнести в проект местную атмосферу.


Фотогалерея:


Чертежи:

Источник: archdaily.com

Перевод: Волчкова Светлана

Комментарии


12.jpg
Перегородка_28.09-3.jpg

Еще больше актуального

Это интернет-агрегатор новостей о мире архитектуры.

Сообщество, где можно познакомиться с людьми, чья деятельность связана с архитектурой и дизайном, а также найти единомышленников, неравнодушных к этой сфере. Мы - это открытая информационная площадка, где можно обмениваться знаниями и мнениями, узнавать о новых трендах и приемах, а также рассказывать о собственных проектах.

Удобный сервис для представления своих работ, необычных дизайнерских решений, креативных идей и концепций.

Платформа, на котором собраны только самые интересные и актуальные материалы об архитектуре, дизайне, строительных технологиях, урбанистике.

Подпишитесь на наши обновления

Отправлено. Спасибо!

  • Facebook - черный круг
  • Instagram - черный круг
  • Vkontakte - черный круг
  • Twitter - черный круг
  • Pinterest - черный круг

© 2020 ООО ВВМ

Сайт является интернет-агрегатором и не несет ответственность за достоверность публикуемых материалов.

Все права на картинки и тексты принадлежат их авторам. 16+

bottom of page