top of page

CAD 3 Center / DPFP UFMG

  • vovakyullinen
  • 21 июн. 2020 г.
  • 2 мин. чтения

Проект был осуществлен с помощью инновационной методологии под руководством учителя, исследователя и архитектора Марии Люсии Малард. Эта коллективная неиерархическая концепция позволила шести архитекторам разного возраста, происхождения и опыта предложить и обсудить архитектуру этого здания в дизайнерских мастерских. Идея строительства заключалась в том, чтобы коллективно создать здание, пригодное для обучения и которое бы соответствовало генеральному плану университета.



Образовательное учреждение




























































+щадь: 10,600 м²

Год: 2018

Фото: Юлиана Берзойни



Центр академической деятельности (CAD), созданный за счет средств Программы поддержки плана реструктуризации и расширения федеральных университетов (REUNI 2008), открыл новую форму управления пространством в UFMG. Эти места не связаны с академическими единицами и управляются Координацией по делам сообщества. UFMG могут принимать классы и студентов из всех академических подразделений, хотя из-за предлагаемой стратегии для их местоположения каждый предпочтительно соответствует одной из трех основных областей знаний, в случае UFMG 3 - точных наук. Завершение строительства приобрело особое значение в связи с экономическим политическим кризисом, который вызвал прекращение всех работ по расширению государственных университетов в Бразилии.



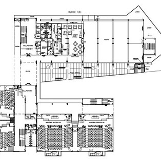
CAD 3 создал три класса на 50 мест, 22 класса на 70 мест и восемь аудиторий на 150 мест. Здание разделено на два блока. Комнаты находятся в сером блоке, а аудитории в желтом блоке. Комплекс имеет застроенную площадь 10 600 кв. Одним из основных моментов новых помещений является структура четырех из восьми аудиторий, расположенных во втором блоке. Две пары этих аудиторий имеют шарнирные модульные перегородки, что позволяет превратить их в два амфитеатра вместимостью 300 человек каждый. В них занятия или лекции будут проводиться в 360º. Вся конструкция содержит звукоизоляцию.




Фотогалерея:



Чертежи:



Источник: archdaily.com

Создатели: AutoDesk,Isover,Leroy Merlín,Osram,Adobe,Alcoa,Aquanet,Arouca,Artlantis,Celite,ConsulGEO - DO,Coral,Deca,Eliane,Fabrimar,Fortelev,Itaim Iluminação,JDIMAS,Marmoaria,Mercado local,MetalFort,Microsoft,Minas MDF,Moeller/Cemar,Montele,Papaiz,Serralheria in loco,Supermix,Suvinil,Trimble,Viaplus,Vidro MG

Ведущие архитекторы: Alethea Lessa, Geraldo Ângelo Silva, Bruno Calazans, Beatriz Fialho

Команда дизайнеров: Abelar dos Anjos, Alan Ferreira Rodrigues, Anna Carolina Ozorio, Geraldo José Carvalho, Gerson Soares, Ismael Freitas, Rafael Soares Ferreira, Marcos, Rodrigo Araújo

Конструкция: Паула Мачадо

Проектирование: SEIT ar condicionado, MAGNA electrical, BM esquadrias, ONOMA Hydro Sanitary, DELPA fire protection, CLAM climate license

Акустика: Metron Acustica (Умберто Таварес)

Ландшафт: ДПФП УФМГ - Аленка Ченчич

Графический дизайн: DPFP UFMG - Кендсон Алвес

Клиент: UFMG

Перевод: Кюллинен Владимир

Комментарии


12.jpg
Перегородка_28.09-3.jpg

Еще больше актуального

Это интернет-агрегатор новостей о мире архитектуры.

Сообщество, где можно познакомиться с людьми, чья деятельность связана с архитектурой и дизайном, а также найти единомышленников, неравнодушных к этой сфере. Мы - это открытая информационная площадка, где можно обмениваться знаниями и мнениями, узнавать о новых трендах и приемах, а также рассказывать о собственных проектах.

Удобный сервис для представления своих работ, необычных дизайнерских решений, креативных идей и концепций.

Платформа, на котором собраны только самые интересные и актуальные материалы об архитектуре, дизайне, строительных технологиях, урбанистике.

Подпишитесь на наши обновления

Отправлено. Спасибо!

  • Facebook - черный круг
  • Instagram - черный круг
  • Vkontakte - черный круг
  • Twitter - черный круг
  • Pinterest - черный круг

© 2020 ООО ВВМ

Сайт является интернет-агрегатором и не несет ответственность за достоверность публикуемых материалов.

Все права на картинки и тексты принадлежат их авторам. 16+

bottom of page