top of page

CO-OP Ramen Restaurant / Marlon Blackwell Architect

  • vovakyullinen
  • 15 авг. 2020 г.
  • 1 мин. чтения

В 2018 году Ropeswing Group выбрала Marlon Blackwell Architects (MBA) для создания интерьера своего нового ресторана Fast Casual Ramen площадью 185 квадратных метров на рынке 8th StreetMarket в Бентонвилле, штат Арканзас. Рынок на 8-й улице - это творческое переосмысление местной экономики заброшенного завода по переработке пищевых продуктов. Дизайн для CO-OP Ramenразвился из продуктивного диссонанса нового и старого, высоко обработанного и случайного.



Ресторан, Бентонвилль, США

Архитектор: Marlon Blackwell Architects

Площадь: 158 м ²

Год: 2019

Фото: Timothy Hursley

Создатели: AutoDeskFormicaLutronEmecoPhilippe Starck, Adobe, C by M Creative, Nora Lighting, Red Dot, Unistrut


Пространство, построенное из простых и необработанных материалов, в особенности бетона, кирпичной кладки и фанеры, излучает богатство через тщательно продуманные текстуры. Внешний вид ресторана фильтруется сквозь непрерывную стальную бисерную занавеску, которая отражает и смягчает свет, откладывая полное ощущение пространства до тех пор, пока вы не войдете. Охватывая японское понятие «ваби саби», которое прославляет асимметрию и несовершенство в грубых и естественных объектах, MBA создал “пещеру”, содержащую кабинки из простой строительной качественной фанеры. Эти раздельные ложи приподняты, обработаны и закруглены, это подчеркивается скрытыми светильниками.


Пройдя через сжатое и сочлененное пространство пещеры, гость попадает в просторную общую зону отдыха, территориально объединенную под глубоко кессонированным фанерным потолком. Окруженные бетонными блоками стен, смягченными живой зеленой стеной высотой 12 футов, гости могут наблюдать, как повара работают на открытой кухне, создавая изысканные версии простой еды, что само по себе является проявлением того же духа «ваби-саби».




Фотогалерея:


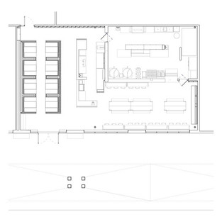
Чертежи:


Источник: archdaily.com

Перевод: Кюллинен Владимир

 
 
 

Комментарии


12.jpg
Перегородка_28.09-3.jpg

Еще больше актуального

Это интернет-агрегатор новостей о мире архитектуры.

Сообщество, где можно познакомиться с людьми, чья деятельность связана с архитектурой и дизайном, а также найти единомышленников, неравнодушных к этой сфере. Мы - это открытая информационная площадка, где можно обмениваться знаниями и мнениями, узнавать о новых трендах и приемах, а также рассказывать о собственных проектах.

Удобный сервис для представления своих работ, необычных дизайнерских решений, креативных идей и концепций.

Платформа, на котором собраны только самые интересные и актуальные материалы об архитектуре, дизайне, строительных технологиях, урбанистике.

Подпишитесь на наши обновления

Отправлено. Спасибо!

  • Facebook - черный круг
  • Instagram - черный круг
  • Vkontakte - черный круг
  • Twitter - черный круг
  • Pinterest - черный круг

© 2020 ООО ВВМ

Сайт является интернет-агрегатором и не несет ответственность за достоверность публикуемых материалов.

Все права на картинки и тексты принадлежат их авторам. 16+

bottom of page