top of page

Family Villa in Giruliai / DO Architects

  • vovakyullinen
  • 29 июн. 2020 г.
  • 1 мин. чтения

Вилла для семьи построена всего в нескольких сотнях метров от берега Балтийского моря, где смешиваются вода, песок, галька и сосны. Виды, впечатления и звуки окружающей природы сопровождают подход к вилле и наполняют её интерьер спокойным присутствием. Местные материалы, используемые в экстерьере и интерьере, смешивают здание с естественным Балтийским побережьем.



Дом / ЛИТВА

Архитекторы: DO Architects

Площадь: 567 м²

Год: 2018

Фото: Лаймонас

Создатели: Focus, Lunawood



Здание разделено на две разные зоны, чтобы создать пространства для различных функций и комфортного проживания. Объемы и пространства связаны между собой, что делает виллу очень привлекательной и подходящей для каждого члена семьи.




Фотогалерея:


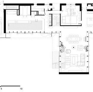
Чертежи:


Источник: archdaily.com

Перевод: Кюллинен Владимир


Комментарии


12.jpg
Перегородка_28.09-3.jpg

Еще больше актуального

Это интернет-агрегатор новостей о мире архитектуры.

Сообщество, где можно познакомиться с людьми, чья деятельность связана с архитектурой и дизайном, а также найти единомышленников, неравнодушных к этой сфере. Мы - это открытая информационная площадка, где можно обмениваться знаниями и мнениями, узнавать о новых трендах и приемах, а также рассказывать о собственных проектах.

Удобный сервис для представления своих работ, необычных дизайнерских решений, креативных идей и концепций.

Платформа, на котором собраны только самые интересные и актуальные материалы об архитектуре, дизайне, строительных технологиях, урбанистике.

Подпишитесь на наши обновления

Отправлено. Спасибо!

  • Facebook - черный круг
  • Instagram - черный круг
  • Vkontakte - черный круг
  • Twitter - черный круг
  • Pinterest - черный круг

© 2020 ООО ВВМ

Сайт является интернет-агрегатором и не несет ответственность за достоверность публикуемых материалов.

Все права на картинки и тексты принадлежат их авторам. 16+

bottom of page