top of page

HL Building / BASIO

  • Волчкова Светлана
  • 22 июл. 2020 г.
  • 2 мин. чтения

KECAMATAN PONDOK AREN, INDONESIA

Архитекторы: Basio

Площадь: 451 м2

Год: 2019

Фото: KIE

HL Building - это коммерческое здание, расположенное в районе Бинтаро - районе, где встречаются бизнес, жилой комплекс и образовательные учреждения и создают шумную жизнь. Здание разделено на три зоны, предназначенные для того, чтобы люди могли тусоваться и отдыхать в хорошей атмосфере с хорошей едой. В нем разместились два заведения: кофейня и кафе-мороженое.

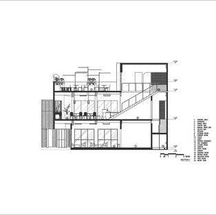
Использование белого кирпича для фасада было вдохновлено итальянской концепцией с самого начала. Белые стены гармонизируют это здание с окружающим жилым комплексом, но все же отличают его от других зданий. Большие окна позволяют естественному свету наполнять здание в дневное время. В интерьере BASIO уравновешивает сталь с краской. Использование пандуса также придает современный и гладкий вид. Чтобы добавить больше деталей, несмотря на то, что пандус сделан из стали, архитектор решил сделать его прозрачным, чтобы убрать ощущение тяжести материала. По ночам рампа будет освещаться лампами, и это сделает пространство более живым. Пандус имеет еще одну функцию - он соединяет каждый этаж и позволяет клиентам легко и удобно добираться на этаж выше или ниже.

С самого начала процесса планирования трехэтажное здание всегда предназначалось для размещения двух разных владельцев. BASIO также отвечал за дизайн интерьера обоих продавцов. Таким образом, легче создать атмосферу для посетителей здания. Кофейня открыта с утра, чтобы обслужить любителей завтрака и кофе, в то время как кафе-мороженое открывается около полудня на обед и небольшие закуски. Зона на крыше является одним из самых ярких элементов здания HL, так как она дает людям место, где можно собраться для простого общения или частной встречи в течение дня и до самого вечера. Расположенная на третьем этаже крыша - место, где можно расслабиться после долгих часов работы или в выходные дни. Здесь посетители могут свободно наслаждаться открытым воздухом, не выходя для этого в жилой район рядом со зданием HL.

Расположение проекта

Адрес: Jl. Maleo Raya, Pd. Pucung, Kec. Pd. Aren, Kota Tangerang Selatan, Banten 15229, Indonesia

Источник: archdaily.com

Перевод: Волчкова Светлана


Комментарии


12.jpg
Перегородка_28.09-3.jpg

Еще больше актуального

Это интернет-агрегатор новостей о мире архитектуры.

Сообщество, где можно познакомиться с людьми, чья деятельность связана с архитектурой и дизайном, а также найти единомышленников, неравнодушных к этой сфере. Мы - это открытая информационная площадка, где можно обмениваться знаниями и мнениями, узнавать о новых трендах и приемах, а также рассказывать о собственных проектах.

Удобный сервис для представления своих работ, необычных дизайнерских решений, креативных идей и концепций.

Платформа, на котором собраны только самые интересные и актуальные материалы об архитектуре, дизайне, строительных технологиях, урбанистике.

Подпишитесь на наши обновления

Отправлено. Спасибо!

  • Facebook - черный круг
  • Instagram - черный круг
  • Vkontakte - черный круг
  • Twitter - черный круг
  • Pinterest - черный круг

© 2020 ООО ВВМ

Сайт является интернет-агрегатором и не несет ответственность за достоверность публикуемых материалов.

Все права на картинки и тексты принадлежат их авторам. 16+

bottom of page