top of page

House in Nishi-eifuku / KIRI Architects

  • vovakyullinen
  • 1 июл. 2020 г.
  • 1 мин. чтения

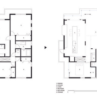
Проект реконструкции дома в жилом районе Токио. Поскольку на первом этаже 2-этажного дома на две семьи все еще находится дом матери клиента, объем ремонта был ограничен только верхним этажом. Проект осуществился в результате простого подхода повторного изменения существующего здания.


Дома / Япония

Архитектор: KIRI Architects

Площадь: 77 м²

Год: 2017

Фото: Anna Nagai


Проект реконструкции дома в жилом районе Токио. Поскольку на первом этаже 2-этажного дома на две семьи все еще находится резиденция матери Клиента, объем ремонта был ограничен только верхним этажом. Проект осуществился в результате простого подхода повторного изменения существующего здания.


В отличии от предыдущей 3-комнатной квартиры, это здание разделено планировкой, а материалы, использованные в строительстве, будто пронзают все комнаты - различные отверстия разных пропорций позволяют пространству свободно соединяться воедино. В определенных местах вид улицы открывается через весь жилой квартал, в то время как другие места укрываются обломками стен. Постоянная переоценка глубины комнат чувствуется, когда кто-то движется в данном пространстве.


Удаляя старый потолок и добавляя новое окно в крыше, поток естественного света раскрывает новый пространственный каркас стен. Стену, обращенную к югу, полностью заменяет стеклянный фасад с деревянным каркасом, выдвинутый к линии карниза, что позволяет глубокому естественному освещению попадать в жилое пространство.


Естественный свет здесь является средой для дальнейшего освещения светотени различной пространственной глубины, созданной повторяющимся прокалыванием здания. Несмотря на связь, неформальное знакомство с помещением становится возможным в рамках глубины всего интерьера.




Фотогалерея:


Чертежи:


Источник: archdaily.com

Создатели: AutoDesk, Grohe, Sanwa Company

Главный архитектор: Keisuke Kiri

Подрядчик: BEANS Limited

Переводчик: Hideto Chijiwa

Перевод: Кюллинен Владимир

Комментарии


12.jpg
Перегородка_28.09-3.jpg

Еще больше актуального

Это интернет-агрегатор новостей о мире архитектуры.

Сообщество, где можно познакомиться с людьми, чья деятельность связана с архитектурой и дизайном, а также найти единомышленников, неравнодушных к этой сфере. Мы - это открытая информационная площадка, где можно обмениваться знаниями и мнениями, узнавать о новых трендах и приемах, а также рассказывать о собственных проектах.

Удобный сервис для представления своих работ, необычных дизайнерских решений, креативных идей и концепций.

Платформа, на котором собраны только самые интересные и актуальные материалы об архитектуре, дизайне, строительных технологиях, урбанистике.

Подпишитесь на наши обновления

Отправлено. Спасибо!

  • Facebook - черный круг
  • Instagram - черный круг
  • Vkontakte - черный круг
  • Twitter - черный круг
  • Pinterest - черный круг

© 2020 ООО ВВМ

Сайт является интернет-агрегатором и не несет ответственность за достоверность публикуемых материалов.

Все права на картинки и тексты принадлежат их авторам. 16+

bottom of page