top of page

House of Brightness / Nakajima Koyo

  • vovakyullinen
  • 19 июн. 2020 г.
  • 1 мин. чтения

Этот проект реконструкции дома направлен на превращение неиспользуемой резиденции, в многофункциональное здание офиса, магазина и резиденции. Офис для налоговой бухгалтерии. Магазин для маникюрного салона. Необходимо разделить эти три функции с точки зрения пространства и циркуляции, было трудно сделать их полностью независимыми с достаточным пространством и отдельными входами в этот небольшой дом. Чтобы разрешить эту ситуацию, в переднюю часть существующего здания добавлена новая структура путем удаления старого фасада, чтобы построить новую прихожую.


Смешанная архитектура, реновация / Япония

Архитектура: Nakajima Koyo

Площадь: 197 м²

Год: 2018

Фото: Tetsuya Tsurumi



Новое входное пространство имеет пустоту, которая в основном открыта полупрозрачной наружной стеной и поэтому оно заполняется мягким и естественным светом. Эта яркость привела бы к косвенному соответствию между тремя функциями, обеспечивая всю архитектуру богатым пространственным опытом. Причина, по которой архитекторы сосредоточились на этой «яркости», связана с местным несколько унылым климатом. Этот участок преимущественно облачный, часто дождливый, и поэтому солнечного света довольно мало. Как и горы «Татеяма», известные в этой области, с их силуэтом, таящим в небе, мягкий свет воплощается в архитектуре, не беспокоясь о погоде.


Потолок был наклонен, чтобы работать в рассеянном свете. Существуют прозрачные фиксированные акриловые пластины, которые разделяют тепловую среду первого и второго этажа, пропуская свет. Многослойная поликарбонатная наружная пластина имеет в своем соединении плоскую пластину SUS. Старый подоконник, расположенный на втором этаже, работает как перила. Вот создание неоднозначного дополнительного пространства в том, что в противном случае было внешним видом здания. Фасад этой структуры выглядит как явление, а не вещество. Ночью его полупрозрачный фасад появляется в городском пейзаже, похожем на фонарь, который можно увидеть во время ежегодных фестивалей в этом регионе.




Фотогалерея:



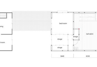
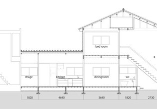
Чертежи:



Источник: archdaily.com

Создатель: Lixil Group, Sanwacompany, Siphon, Takiron, luci

Главный архитектор: Nakajima Koyo (belong to NIKKEN SEKKEI)

Перевод: Кюллинен Владимир

Комментарии


12.jpg
Перегородка_28.09-3.jpg

Еще больше актуального

Это интернет-агрегатор новостей о мире архитектуры.

Сообщество, где можно познакомиться с людьми, чья деятельность связана с архитектурой и дизайном, а также найти единомышленников, неравнодушных к этой сфере. Мы - это открытая информационная площадка, где можно обмениваться знаниями и мнениями, узнавать о новых трендах и приемах, а также рассказывать о собственных проектах.

Удобный сервис для представления своих работ, необычных дизайнерских решений, креативных идей и концепций.

Платформа, на котором собраны только самые интересные и актуальные материалы об архитектуре, дизайне, строительных технологиях, урбанистике.

Подпишитесь на наши обновления

Отправлено. Спасибо!

  • Facebook - черный круг
  • Instagram - черный круг
  • Vkontakte - черный круг
  • Twitter - черный круг
  • Pinterest - черный круг

© 2020 ООО ВВМ

Сайт является интернет-агрегатором и не несет ответственность за достоверность публикуемых материалов.

Все права на картинки и тексты принадлежат их авторам. 16+

bottom of page