top of page

House of Tranquility / Tal Goldsmith Fish Design Studio

  • Пивоварова Екатерина
  • 14 окт. 2020 г.
  • 1 мин. чтения

ДОМА, ИНТЕРЬЕРЫ ДОМОВ. ИЗРАИЛЬ.


Архитекторы: Tal Goldsmith Fish Design Studio

Площадь: 400 m²

Год: 2020

Фотографии: Амит Герон

Производители: AutoDesk, Vibia, Arclinea, BD Barcelona Design, Flexform, MDF Italia, Muuto


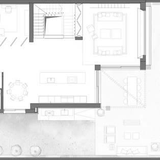
На каждом проекте, который мы принимаем, мы стараемся проецировать характер наших клиентов в дизайне. В этом доме мы воплощаем их спокойную и приятную природу в медитативное пространство. Наши рекомендации по дизайну включали в себя светлую цветовую палитру, натуральные материалы и повторяющиеся основные геометрические узоры. Наряду с большим естественным освещением, мы смогли достичь желаемого результата.



Для всего дома мы использовали деревянный пол из копченого дуба, а также светлую одноцветную мебель и осветительные элементы. Для лестниц и перил мы использовали белые окрашенные тонкие железные доски. Чтобы отделить лестницу от гостиной и при этом сохранить связь между двумя зонами, мы спроектировали прозрачные деревянные жалюзи высотой 6 метров, расположенные внутри косого деревянного каркаса. Квадратная сетка продолжается до поворотных дверей телевизионной комнаты.


Напротив жалюзи, на другой стороне гостиной, мы включили деревянное окно сиденья, обрамляя большое окно с видом на открытый бассейн, создавая приятную зону отдыха на границе между внутренним и внешним. Кухня итальянской марки Arclinea с 5-метровым островом стоит в самом сердце первого этажа, открывая вид на все площади пола и двора.


Фотогалерея:


Источник: archdaily.com

Перевод: Пивоварова Екатерина

Комментарии


12.jpg
Перегородка_28.09-3.jpg

Еще больше актуального

Это интернет-агрегатор новостей о мире архитектуры.

Сообщество, где можно познакомиться с людьми, чья деятельность связана с архитектурой и дизайном, а также найти единомышленников, неравнодушных к этой сфере. Мы - это открытая информационная площадка, где можно обмениваться знаниями и мнениями, узнавать о новых трендах и приемах, а также рассказывать о собственных проектах.

Удобный сервис для представления своих работ, необычных дизайнерских решений, креативных идей и концепций.

Платформа, на котором собраны только самые интересные и актуальные материалы об архитектуре, дизайне, строительных технологиях, урбанистике.

Подпишитесь на наши обновления

Отправлено. Спасибо!

  • Facebook - черный круг
  • Instagram - черный круг
  • Vkontakte - черный круг
  • Twitter - черный круг
  • Pinterest - черный круг

© 2020 ООО ВВМ

Сайт является интернет-агрегатором и не несет ответственность за достоверность публикуемых материалов.

Все права на картинки и тексты принадлежат их авторам. 16+

bottom of page