top of page

LeBreton 4482 Building / Barq

  • vovakyullinen
  • 15 июн. 2020 г.
  • 1 мин. чтения

Здание расположено на тихой улице в окрестностях Виллы Уркиса, рядом с которой находится две железнодорожные станции Коглан и Драго.

Это процветающий район, который знаменит его разнообразными сооружениями - от старых одноэтажных и двухэтажных домов до многоквартирных - тихих, усаженных деревьями улиц рядом с быстрым транспортом и оживленными проспектами.



Квартиры / Аргентина

Architects: Barq

Год: 2014

Проектная команда: Julián Berdichevsky, Mariano Varela, Magdalena Real, Carla Selva, Daniela Devesa

Архитектор: Sebastián Berdichevsky


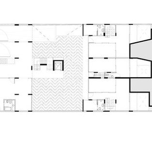
Взяв за пример офисное здание, которое находится всего в 50 метрах от отеля, Le Breton II, как называют его создатели, имеет определенные типологии, взятые от своего предшественника. Они сгруппированы в два блока, разделенных большим центральным двором. Апартаменты с видом на город — это студия, две и три спальни, а также два пентхауса с террасой. Задний блок имеет 3 дома на первом этаже с собственным садом и пентхаус на третьем этаже с большой террасой и бассейном. Эти типологии пытаются сохранить характер домов по соседству, но в пределах удобства коллективного жилого комплекса.


Материалы и отделка: структурный бетон открыт, неокрашен, апеллирует к различным типам опалубки для освещения, чтобы оттенки выделялись по-разному. Большие стеклянные панели от пола до потолка с алюминиевыми рамами, со внутренней и наружной черной штукатуркой. Облицовка деревом заднего блока здания придает ему особую современную теплоту, в отличие от передней стороны здания.




Фотогалерея:



Чертежи:



Источник: archdaily.com

Перевод: Кюллинен Владимир

Комментарии


12.jpg
Перегородка_28.09-3.jpg

Еще больше актуального

Это интернет-агрегатор новостей о мире архитектуры.

Сообщество, где можно познакомиться с людьми, чья деятельность связана с архитектурой и дизайном, а также найти единомышленников, неравнодушных к этой сфере. Мы - это открытая информационная площадка, где можно обмениваться знаниями и мнениями, узнавать о новых трендах и приемах, а также рассказывать о собственных проектах.

Удобный сервис для представления своих работ, необычных дизайнерских решений, креативных идей и концепций.

Платформа, на котором собраны только самые интересные и актуальные материалы об архитектуре, дизайне, строительных технологиях, урбанистике.

Подпишитесь на наши обновления

Отправлено. Спасибо!

  • Facebook - черный круг
  • Instagram - черный круг
  • Vkontakte - черный круг
  • Twitter - черный круг
  • Pinterest - черный круг

© 2020 ООО ВВМ

Сайт является интернет-агрегатором и не несет ответственность за достоверность публикуемых материалов.

Все права на картинки и тексты принадлежат их авторам. 16+

bottom of page