top of page

Reading Room / George King Architects

  • vovakyullinen
  • 13 июл. 2020 г.
  • 1 мин. чтения

Однокомнатная пристройка спроектирована как удобное пространство, которое позволит клиенту наслаждаться спокойной обстановкой сада. Расположенный недалеко от памятника Uley Bury, на склоне холма Iron Age, этот объект также входит в состав заповедной зоны, выдающейся своей уникальной природной красотой.


Пристройка, интерьер / Великобритания

Архитектор: George King Architects

Площадь: 16 м²

Год: 2020

Главный архитектор: George King Architects



Ключевой особенностью дизайна этой небольшой пристройки к коттеджу 17 века в Котсуолдсе является его стеклянные стены, которые могут полностью исчезнуть за тремя деревянными книжными шкафами. Книжные шкафы также образуют конструкцию здания, заменяя стены, поддерживая консольную зеленую крышу. Такая конструкция позволяет стенам здания полностью исчезнуть, создавая сюрреалистическую наружную гостиную. Безопорный угол крыши позволяет пространству протекать в сад, который был преобразован в серию ландшафтных террас, в то время как книжные шкафы обрамляют вид на долину и холмы за ее пределами.


Создание связи между старой постройкой и новым модернистским дизайном было ключевым фактором для архитекторов. Новая пристройка облицована обугленным деревом для того, чтобы подчеркнуть оригинальные темные витражи, викторианские железные изделия, деревянные балки и перегородки, уже использованные в интерьере коттеджа, в то время как внутренняя отделка выполнена из светлой березовой фанеры, в дополнение к существующим каменным стенам Котсволда. Стены находились в плохом состоянии, будучи ранее окрашены, и поэтому были восстановлены путем снятия краски, переточки и ремонта, где это необходимо, чтобы выставить красивый Котсволд камня и добавить тепла и текстуры в коттедже.


Проект также включает в себя дизайн комплекта мебели, изготовленной на заказ из фанеры в соответствии с интерьером. Модульная конструкция добавляет гибкости пространству, позволяя клиенту перенастраивать расположение и перемещать мебель внутри или снаружи в зависимости от погоды.




Фотогалерея:


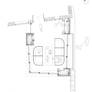
Чертежи:


Источник: archdaily.com Дизайн мебели: Harris & Harris London

Инженерия: Davies Torres Design

Заказчик: Chappell & Dix

Перевод: Кюллинен Владимир

Комментарии


12.jpg
Перегородка_28.09-3.jpg

Еще больше актуального

Это интернет-агрегатор новостей о мире архитектуры.

Сообщество, где можно познакомиться с людьми, чья деятельность связана с архитектурой и дизайном, а также найти единомышленников, неравнодушных к этой сфере. Мы - это открытая информационная площадка, где можно обмениваться знаниями и мнениями, узнавать о новых трендах и приемах, а также рассказывать о собственных проектах.

Удобный сервис для представления своих работ, необычных дизайнерских решений, креативных идей и концепций.

Платформа, на котором собраны только самые интересные и актуальные материалы об архитектуре, дизайне, строительных технологиях, урбанистике.

Подпишитесь на наши обновления

Отправлено. Спасибо!

  • Facebook - черный круг
  • Instagram - черный круг
  • Vkontakte - черный круг
  • Twitter - черный круг
  • Pinterest - черный круг

© 2020 ООО ВВМ

Сайт является интернет-агрегатором и не несет ответственность за достоверность публикуемых материалов.

Все права на картинки и тексты принадлежат их авторам. 16+

bottom of page