top of page

Rowen esaka Salon / Naoya Matsumoto Design

  • vovakyullinen
  • 14 июн. 2020 г.
  • 1 мин. чтения

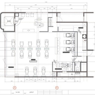
Парикмахерская на пятом этаже многоквартирного здания в Осаке, разработана Naoya Matsumoto Design. Концепция бренда - «низкая цена, высокое качество, скорость». В салоне расположены 13 парикмахерских станций и 4 станции для мытья головы, располагаются на площади около 43㎡.



Салон \ Вэлбинг, Япония

Дизайнер: Naoya Matsumoto Design

Площадь: 100

Год: 2019

Фото: Takeshi Asano

Создатели: Vectorworks, Magis, ALC skeleton, Corastar, Rawan veneer, SEIKO SCM, Skeleton ceiling, Yuzawa, zuken mushimatsu


Во-первых, архитекторы смело установили двухсторонние стайлинг-станции прямо в центре зала и обеспечили достаточно места с обеих сторон для основного кругового потока клиентов и рабочих. Вокруг зоны среза между помывочной и зоной приема расположены перегородки с одинаковой высотой 1500 мм, которые также служат в качестве шкафчиков для хранения.


«То, что уже существует», «то, что недавно создано» и «то, что только будет создано»: эти три элемента искусно смешаны в пространстве, чтобы создать необычное чувство, которое не будет ассоциироваться с «низкой стоимостью». Низкие цены на услуги расширяют круг клиентов, и для этого требуется сильная воля, чтобы сохранить уникальность заведения, не увязая в тенденциях.




Фотогалерея:



Чертежи:



Источник: archdaily.com

Перевод: Кюллинен Владимир

Комментарии


12.jpg
Перегородка_28.09-3.jpg

Еще больше актуального

Это интернет-агрегатор новостей о мире архитектуры.

Сообщество, где можно познакомиться с людьми, чья деятельность связана с архитектурой и дизайном, а также найти единомышленников, неравнодушных к этой сфере. Мы - это открытая информационная площадка, где можно обмениваться знаниями и мнениями, узнавать о новых трендах и приемах, а также рассказывать о собственных проектах.

Удобный сервис для представления своих работ, необычных дизайнерских решений, креативных идей и концепций.

Платформа, на котором собраны только самые интересные и актуальные материалы об архитектуре, дизайне, строительных технологиях, урбанистике.

Подпишитесь на наши обновления

Отправлено. Спасибо!

  • Facebook - черный круг
  • Instagram - черный круг
  • Vkontakte - черный круг
  • Twitter - черный круг
  • Pinterest - черный круг

© 2020 ООО ВВМ

Сайт является интернет-агрегатором и не несет ответственность за достоверность публикуемых материалов.

Все права на картинки и тексты принадлежат их авторам. 16+

bottom of page