top of page

thisisneverthat Office Building / FHHH FRIENDS

  • vovakyullinen
  • 16 авг. 2020 г.
  • 1 мин. чтения

Это проект реконструкции, который превращает ранее существовавшую жилые помещения в офисное здание для одного из ведущих южнокорейских модных брендов. Около 40% стен было разрушено и перестроено в соответствии с необходимыми требованиями к новому зданию.



Офис / Южная Корея

Архитектор: FHHH FRIENDS

Площадь: 157 м²

Год: 2019

Фото: Shin Kyung Sub


Многослойные стены с различными материалами и структурой были выстроены как слои кожи, которые обволакивают уже существующее «ядро» здания. Проходя через процесс, похожий на «шелушение кожи», по одному слою за раз, создается градиент цвета и блеска. Градиент, который играет на свету.


Возникает ощущение вертикальности, которое создается через зазор между наружной стеной и внутренней. Этот зазор подчеркивает вертикальность, привнося свет, воздух и дождь, что придает структуре другое измерение. Прозрачность наружной навесной стены позволяет выразить скрытую за ней вертикальность.




Фотогалерея:


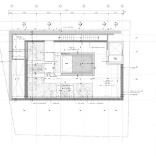
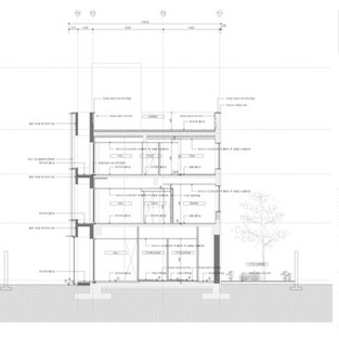
Чертежи:


Источник: archdaily.com

Создатели: AutoDesk, Byucksan, FILOBE, Hanil, Samnam Window, Trimble Navigation

Ответственные архитекторы: Han Yang Kyu, Han Seung Jae, Yoon Han Jin, Kim Hak Seong, Hong Hyeon Seok "Jerry"

Команда дизайнеров: FHHHFriends, Han Yang Kyu, Han Seung Jae, Yoon Han Jin, Kim Hak Seong, Hong Hyeon Seok "Jerry"

Клиент: thisisneverthat

Застройщик: LEEGAK Construction Company

Ландшафт: Atree Landscape

Соавтор: STUDIO COM

Перевод: Кюллинен Владимир

Комментарии


12.jpg
Перегородка_28.09-3.jpg

Еще больше актуального

Это интернет-агрегатор новостей о мире архитектуры.

Сообщество, где можно познакомиться с людьми, чья деятельность связана с архитектурой и дизайном, а также найти единомышленников, неравнодушных к этой сфере. Мы - это открытая информационная площадка, где можно обмениваться знаниями и мнениями, узнавать о новых трендах и приемах, а также рассказывать о собственных проектах.

Удобный сервис для представления своих работ, необычных дизайнерских решений, креативных идей и концепций.

Платформа, на котором собраны только самые интересные и актуальные материалы об архитектуре, дизайне, строительных технологиях, урбанистике.

Подпишитесь на наши обновления

Отправлено. Спасибо!

  • Facebook - черный круг
  • Instagram - черный круг
  • Vkontakte - черный круг
  • Twitter - черный круг
  • Pinterest - черный круг

© 2020 ООО ВВМ

Сайт является интернет-агрегатором и не несет ответственность за достоверность публикуемых материалов.

Все права на картинки и тексты принадлежат их авторам. 16+

bottom of page