top of page

Vineria Wine Cellar / NS Studio

  • Фото автора: Родина Филиппа
    Родина Филиппа
  • 20 мая 2020 г.
  • 2 мин. чтения

Обновлено: 31 мая 2020 г.

Пространство, которое захватывает вас, место, где вы теряете чувство времени, атмосфера, которая делает вас спокойным, это Vineria, винный погреб в центральной части Старого Тбилиси. С хаотичной, оживленной улицы мы вдруг попадаем в пространство, которое полностью изолировано от города, улиц, людей, шума и создает свой собственный мир.


Архитекторы: NS Studio

Площадь: 620 m²

Год: 2018

Фотографии: Nick Paniashvili



До начала ремонтных работ, здесь был заброшенный подвал с шлифованными стенами, остатками старых перекрытий и множеством бесполезных предметов. Однако потенциал этого пространства был заметен с самого начала. Нашей целью было создать место, где каждый человек чувствовал бы себя комфортно, освободился бы от ежедневной нагрузки и получил бы возможность отдохнуть.




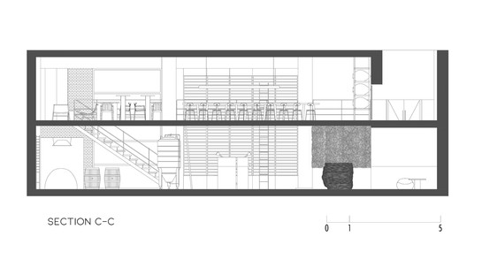
Как только мы входим в пространство, спускаясь по лестнице, мы видим зеленую стену (с висячими растениями), а перед ней - глыбу с функцией стола администратора. Высота потолка позволила нам сделать мезонин, на котором размещена дегустационная зона, под которой находятся полки с вином и крепкими алкогольными напитками, а также зона для цистерн. В этой же части находится пространство с традиционными грузинскими атрибутами и украшениями, ассоциирующимися с вином.


Посетитель может испечь вручную традиционный грузинский хлеб "Лаваши", изготовить традиционные сладости в форме свечи "Чурчхела", увидеть традиционные аксессуары, используемые для изготовления вина: квеври, сацнахели и другие. Учитывая, что здесь высокий потолок, стены мы покрыли двумя традиционными грузинскими коврами, считаем, что с коврами эта зона становится более своеобразной. Лестница мезонина и вышеупомянутое пространство разделены стеклом, что позволяет гостям видеть его с разных сторон.


Чертежи




В этой зоне есть еще два пространства: небольшая библиотека и помещение для лекций/конференций. Следует отметить, что Vineria тоже является небольшим музеем, так как внутри обозримого острова, который расположен в центральной части первого этажа, сохранилась древняя посуда для вина и аксессуары, найденные во время археологических работ в разное время в Грузии.


Источник: ArchDaily

Комментарии


12.jpg
Перегородка_28.09-3.jpg

Еще больше актуального

Это интернет-агрегатор новостей о мире архитектуры.

Сообщество, где можно познакомиться с людьми, чья деятельность связана с архитектурой и дизайном, а также найти единомышленников, неравнодушных к этой сфере. Мы - это открытая информационная площадка, где можно обмениваться знаниями и мнениями, узнавать о новых трендах и приемах, а также рассказывать о собственных проектах.

Удобный сервис для представления своих работ, необычных дизайнерских решений, креативных идей и концепций.

Платформа, на котором собраны только самые интересные и актуальные материалы об архитектуре, дизайне, строительных технологиях, урбанистике.

Подпишитесь на наши обновления

Отправлено. Спасибо!

  • Facebook - черный круг
  • Instagram - черный круг
  • Vkontakte - черный круг
  • Twitter - черный круг
  • Pinterest - черный круг

© 2020 ООО ВВМ

Сайт является интернет-агрегатором и не несет ответственность за достоверность публикуемых материалов.

Все права на картинки и тексты принадлежат их авторам. 16+

bottom of page